家装装修;97㎡两室一厅如何装修,才显得宽敞,以满足祖孙三代6口人的日常生活起居。这套不到百平的房子,在设计师合理的搭配和空间布局下,将两居改成四居,但丝毫不显得拥挤。下面就带大家一起来看看97㎡两室改四居的经典案例吧!
房屋简介:
目前两个小孩还有后期老人居住,加上夫妻两个,目前两个卧室需要改成四个卧室。
房屋信息
项目地址:北京东城区
户型面积:97 ㎡两室一厅
装修风格:现代北欧
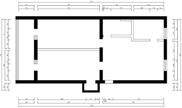
原始户型

原户型存在的问题:
1、原来的两个卧室细长,利用空间不大。
2、阳台细长,利用空间不足
3、客厅没有完整的电视背景墙,作为不方正
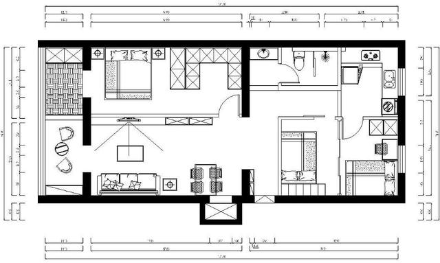
改造后户型图:

解决方案:
2、考虑后期居住人口较多,卫生间做了干湿分离。便于使用。
3、小孩都是正在成长的阶段,把原有采光最好的客厅改成了两个小孩的卧室。
4、 房子长期居住,杂物较多,在主卧设计了衣帽间。
5、 老人偶尔来住,所以在细长的阳台设计了榻榻米, 可以临时住人。
6、 把原有次卧改成了客餐厅,也满足了会客区宽敞亮堂的需求。
卧室
改造前


改造后



一切好的都愿意给孩子。业主夫妻将采光最好的一个区域留给了两个小孩住。为了满足整体房子的储物功能,还加设了衣帽间。整体色调为暖色调,让整个家里更显得温馨。
客厅
改造前


改造后


将原有的次卧改成客厅,由于平时看电视的几率非常低,于是将电视换成了投影幕布,不仅提高了观影效果。还能留出更多空间,应业主的需求设计个很大的书架。
厨房
改造前


改造后

厨房改造成半开放式的,将洗衣机和冰箱大件家电都放在了厨房里,储物功能空间变多,也能更加合理利用厨房空间。
卫生间
改造前


改造后


家里的常住人口多,为方便日常使用,卫生间设计了干湿分离。设计师还细心的把浴室柜做了双盆,以后家里早起早上学、上班洗漱不拥挤,就更方便啦!