当前城市: 长沙
全国咨询热线:400-857-0857    
售后服务热线:

四室一厅一厨一卫设计图 这么宽敞谁都想要吧

发布时间:2020-04-24 10:30:50 作者:千思装饰 观看数:199

  武汉千思家装;与其他户型相比,四室一厅的房子面积较大、采光较好,在设计上也没有什么约束,我们可以根据家庭的喜好来自由设计。本期的装修设计,将给大家带来几套四室一厅的房子装修,不管装修的好坏,这么宽敞谁都想要吧!

  【装修设计】四室一厅一厨一卫设计图 这么宽敞谁都想要吧

  一、四室一厅一厨一卫设计图 ——168㎡四室一厅,硬装省心软装细心,不可方物的美

  “刚出生的女儿”与“新家装修” 该怎样平衡 ?

  大王选择硬装省心,质量靠得住,留更多精力选购软装,电器。

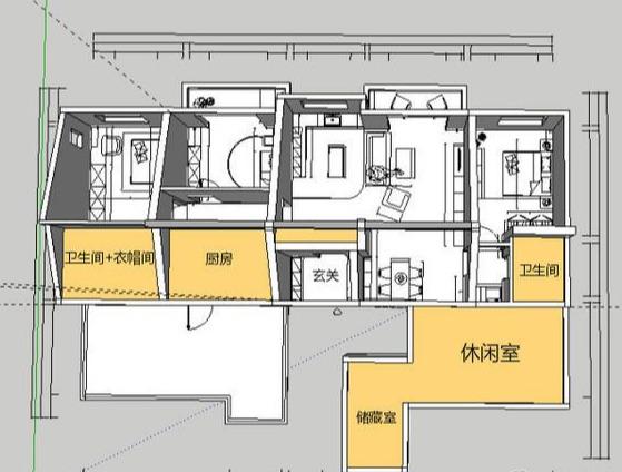
  上 原始户型图,建筑面积 168㎡。

  对硬装省心不代表不在乎,大王光硬装就花了80w,在北京怎么也够买一个卧室了。

  大部分硬装都花在了可以提高生活舒适度却看不到的东西上,比如新风,中央空调,定制衣柜,橱柜等等。

  用一个卧室的钱提高生活舒适度值得吗?大王觉得这钱花的值,毕竟一住很多年。

  上 装修前

  下 装修后

  大王家的房型很特别,全屋168㎡,没有一个房间是平顶,全部是尖顶。最高点4.5米,最低点只有2.5米。

  尖顶不但给施工增加了许多困难、增加了刷漆的面积和费用,同时也限制了一些选择,比如灯具只能安装吊灯。

  不过层高4.5米也有许多优势,藏设备走管道之后再吊顶,也不会因为降低层高使人压抑。

  上 尖顶改平顶吊顶,施工较麻烦,图源:住范儿自摄

  在咨询设计师媛媛后,大王把远离作息区都由尖顶改为平顶。

  这些空间因为远离作息区,很适合吊平顶藏新风系统,热水器,中央空调管道等。

  为了保证舒适度,平时主要活动区域,客厅卧房还是保持了尖顶。

  上 黄色部分为平顶区域,包括由尖顶改为平顶的厨房,卫生间,玄关。以及封露台改为娱乐室。

  玄关

  换鞋凳+定制衣柜鞋柜是玄关常见布局。不寻常的是,大王家的定制入户柜下方悬空且有感应灯,刚进家门的时候可以当做夜灯,也可以制造柜体的悬浮感,视觉上的轻量化。

  上 平时宝宝椅放在玄关,进出都很方便。省的放在餐厅或是阳台还要推来推去的,

  玄关入口处地板是前一阵子很火的六角砖拼木地板。

  六角砖拼木地板好看施工却非常麻烦,大王自己贴的六角砖贴纸,贴出来与地板十分搭配。

  衣柜中间部位留出了一条横槽,平时常戴的首饰与主人喜爱的香薰,装饰画摆在这里,

  客厅

  做为人人羡慕嫉妒的自由职业者,烘焙师大王大部分时间都在家工作生活,而客厅就是大王家的核心活动区,结合了烘焙区,娱乐区以及用餐区。

  也正因为主要活动区都集中在客厅,大王还是很介意从玄关一眼望穿客厅。

  有一些遮挡,但又不完全割裂客厅和玄关的隔断是最理想的。

  电视墙选择了刷了一面水泥墙,是装饰墙面。

  这面墙不是真的水泥,而是使用涂料模仿的水泥质感,摸上去比普通的乳胶漆还光滑。

  设计经理在设计客厅时就分离出了一个宽敞的西厨区,可以给学员上课,招待朋友,制作婚礼甜点。

  现在,西厨区是大王在家最常呆的地方。

  上 定制西厨橱柜

  考虑到大王对烘焙的高要求,橱柜与台面都是定制的。

  比如,操作台很大,可以放各种烘焙电器,空气炸锅,华夫饼,厨师机等。

  比如,做甜点经常会把200℃的锅放台面上,所以西厨台面是岩板的,可以防烫。

  比如,为了拍照好看特意加钱做了仿大理石纹的岩板。

  现在大王唯一觉得有些遗憾的是,因为家里之前地暖状况不错,没有动地暖,所以无法从中厨走下水到西厨。不过中厨本来就与西厨离得不远,去中厨接水也可以接受。

  旁边挂空气凤梨的架子,是在逛街时找到的灵感。

  用挂衣服的黑色衣架,穿上鱼线和空气凤梨做成空气隔断不就既若隐若现又清新美观了么。

  上 图源:pinterest

  可是,定制衣架挂空气凤梨?此时装修师傅内心飘过千百个号。

  大王的办法就是在美图秀秀上画出自己的想法,用图片更直观的跟师傅沟通。最后呈现出来就是大王想要的。

  上 大王与装修师傅沟通图,图源:屋主提供

  上 图源:大王自摄

  客厅旁是用餐区。

  因为大王对美食拍照环境的要求高,无论是用餐区还是西厨区,除了功能性的灯位,其它都由大王自己设计。

  用餐区的射灯,西厨操作台上的轨道射灯都可以根求不同需求,调节不同方向,使食物显得秀色可餐。

  用餐区的玻璃移门,通向由露台封闭而成的休闲室。另有一侧通往客卧,特意挑选了一扇谷仓门。

  不过谷仓门好看,却有诸多缺点,例如不隔音,并且一定要安装在承重墙上。

  大王家的客厅与客卧虽然用的谷仓门,但谷仓门内无论是洗衣间还是客卧都另有一扇平开门,因此解决了谷仓门的隔音问题。

  同时,安装前设计经理杨雪确认了一些细节,踢脚线与开关面板是否小于1.5cm以便留出谷仓门推拉的缝隙,谷仓门上方墙面安装了新风管道后是否还有谷仓门滑轨的空间。

  关于谷仓门,我们还是倡导大家多做调查再确定,谷仓门用作卧室门是不是隔音,后期维修的难度等。

  上 为了保证有充足空间放谷仓门轨道和新风系统,谷仓门门洞下降了一些

  客厅另一侧,通往主卧和儿童房的走廊较长,每隔一定距离就有一盏壁灯照明。

  阳台

  层高高的屋子,有一个天然的优势,充足的自然光线。落地窗旁即使不摆家具,也有一种自然的美感。

  大王家光是窗户就花了6~7万元,整个工期大概30天左右,从电梯运上来不是很费劲。

  异形窗户窗框使用了70型材断桥铝,隔音保温效果都不错。

  傍晚抱着小朋友坐在阳台的吊椅上,看窗外的日落,就这样什么都不做,荒度时间,也是生活的馈赠。

  封露台多出一个休闲室

  小两口之前一直心心念念有个健身,打鼓,弹琴的地方。家里三室一厅全都被占上了,哪有地方放这么大,这么多设备呢?

  没有空间,就创造一个。原先家里两个露台,封掉其中一个露台,就多出了一个休闲室。

  封露台涉及到结构改动,不但需要物业批准,而且只能找物业介绍的专业团队。

  结构搭建完成后,再进行室内的装修。

  休闲室也铺了地暖,从客厅接出来,是市政水暖。

  不过我们回访的时候,休闲室反而被打入了冷宫,小两口每天24h围着宝宝转,除了一起看电视,根本没时间打鼓弹琴。晚上泡在休闲室的生活,恐怕还要等一阵子。

  储藏室

  储藏室挨着休闲室,主要用来储存一些大王和先生的工作用品,婚礼甜点容器等等。大王会提前都打包好,贴上标签,想用的时候整箱带走。

  中厨

  不要以为一位烘焙师平时只热衷于在西厨忙活,其实大王也做得一手好菜。

  许多零碎的东西都放进了橱柜里,中厨一眼望去十分整洁。

  大王最喜欢的家电就是洗碗机和制冰机。有了宝宝,洗碗机可以高温消毒,而且容量大,连锅也放的下。

  冰箱右手边是制冰机。夏天经常喝奶茶,咖啡,柠檬水,有了制冰机也不用望眼欲穿了。

  两只失宠的小狗,平时都在中厨吃饭,因此厨房长条柜子主要储存一些宠物用品。

  而一些临时买回来的菜,或者不方便马上放进冰箱的水果比如芒果,牛油果,就先放在柜子旁的小推车上。

  冰箱上面的空间也被充分利用起来,放一些腌制品。反正平时不会去拿,放的高一些也无所谓。

  上 利用厨房柜门收纳

  主卧

  宝宝入睡后,两口子就在卧室看看电视,电脑,休息一下。

  卧室左手边是一个开放式衣架,放一些平时常穿的衣物,其他的衣物都放在了卧室里的步入式衣帽间里。

  衣帽间的门也是谷仓门,为了包装隐私,里面加上了帘子。看腻了再换个帘子,感觉像换个门。

  偶尔会和宝宝一起睡觉,在床上加个防护板,就不用担心意外发生。

  衣帽间的柜子也是定制的,按展开面积计费,材料选用进口西德板,大王周围的建筑师朋友鉴定完全没味儿,比较推荐。

  主卧卫生间

  大王家一共两个卫生间,主卧与客卧各一个。布局类似,墙砖都选用的颜值革命2.0墙砖。

  卫生间一般人家是镜柜+浴室柜。大王家没有镜柜,而是LED浴室镜+带全身镜的高柜,高柜用来收纳。

  上 主卧卫生间

  浴缸清洁麻烦是很多人最后放弃浴缸的原因,大王每天泡澡,也不觉得清洁麻烦,秘密就是花洒有强力的一档,一冲就干净。

  上 主卧卫生间

  儿童房

  哪个女孩小时候不期望有这样一间房呢?高高尖尖的房顶,大落地窗,粉色的墙漆。

  粉色比较亮眼,选墙漆的时候,还是建议用灰度较高的粉色。

  儿童房还兼具晾晒功能,当时考虑到每天都会洗小件衣物而且干的快,就没买烘干机。

  阳台上安装了隐形晾衣绳,用的时候一抽,不用的时候看起来就是个普通的小盒子。

  客卧

  为了方便父母带孩子时来住,特意留了一个客卧。客卧外是一个小小的洗衣房。小朋友的口水巾,围兜等与大人的衣物分开洗,不仅更干净卫生,同时也解放了妈妈的双手。

  蒸汽拖把比较重,带线,所以大王觉得并不是很好用,一周就用一次。

  客卧卫生间

  客卧卫生间布局与主卧卫生间类似。不同的是,因为离洗衣房比较近,所以收纳空间更多,除了高柜以外还增加了小推车。

  上 利用墙壁空间收纳

  露台

  厨房出去就是露台,露台门与家里其他的门材质一样,小区24小时巡逻,基本不用担心安全问题。

  露台在户外毕竟风出雨打,所以铺了防腐木地板,每平200多元,墙漆为防水漆。

  鹅卵石和土来自淘宝,可以送上楼,找个喜爱园艺的朋友,一起自己种的花。

  平时清洁就在浇花的时候用水枪冲一遍地。

  夏天的夜晚与先生在露台,吹着微风,点起壁灯与蜡烛,小酌一杯。

  或是与朋友聊聊最近的生活,最近的彼此,很是惬意。

  虽知道生活的方式多种多样,或许朝九晚五两点一线的生活并不是唯一的出路,可也没有勇气迈出哪怕一小步,尝试自由职业者的“自由”。

  可这世界啊,美妙就美妙在,你虽无法当烘焙师,当绘画家,却可以通过书籍,通过科技了解他人的生活,了解与你截然不同的一种生活方式。

  二、四室一厅一厨一卫设计图 ——125㎡的四室一厅装修案例,纯白色极简家居

  125㎡的四室一厅装修案例,因为平时业主只有2个人居住,所以总体面积是足够的。整体风格为纯白色,餐桌电视柜等几件大件家具选用深色的实木材质,空间层次分明的同时更加沉稳大气。

  玄关处的设计个人特别喜欢,浅色的地砖与整体色调更加和谐,玄关顶部的2个菱形吊灯,造型也是很别致了。

  一侧是嵌入式换鞋凳的设计,白色的柜子与整体融为一体,墙面一朵黄色的花朵涂鸦点缀,点亮了整个空间。

  另一侧是白色的玄关柜与衣柜的组合,收纳能力极强。黑色边框的大面方形玄关镜,增强了空间的延展性与空间感。

开放式的餐厨设计,白色的L型橱柜,一边是灶台与洗菜池,留有足够的操作台面。大吸力的抽油烟机旁那扇窗户当然也是再好不过的了,采光好又可以通风换气。另一边是吊柜+大量的收纳柜组合,消毒柜和双开冰箱嵌入收纳柜中,美观又不占用空间。

  岛台的设计方便简洁,分隔了餐厨的空间,厨房后方就是餐厅的部分,深色的实木餐桌与软垫餐椅,温馨舒适。

  从岛台的位置看客厅和餐厅,它们的顶部各安装了一盏树枝造型的吊灯,餐桌后方墙面上的花草墙纸,清新自然。

  客厅电视墙的设计整体给人温馨的感觉,深色实木电视柜,电视尺寸也是比较大的,电视背景墙用淡雅的墙纸铺贴。客厅大面积的落地窗,让整个空间更加通透明亮。

  客厅的白色沙发与花色单人沙发组合,玻璃茶几简洁美观又节省了空间。铺上一块灰色的地毯格外温馨。沙发背景墙安装了一块黑色边框的磨砂玻璃窗,线条感十足。

  玻璃窗后面是阳台的区域,打造成一块休闲的空间,宽大的飘窗设计,铺上蓝色的飘窗垫,靠在这晒着太阳简直是一种享受。阳台的铁艺展示架也是一大亮点。

原文链接:https://www.qszs.com/zxzs/zxjq/5679.html
标签: