当前城市:
长沙
▼
根据您当前的位置,推荐您去
长沙站
长沙
全国咨询热线:400-857-0857
售后服务热线:
首页
全品类整装
风格案例
家装学院
质尊工艺
关于千思
首页
>
装修案例
新中式风格设计居室
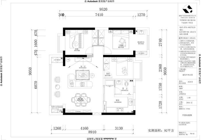
三居中式100-120㎡
人气↑1277
收藏
分享
全景体验
新中式风格设计
案例风格
中式
案例户型
三居
案例面积
100-120㎡
楼盘名称
所在城市
案例造价
案例详情
相关案例推荐
更多>>
新中式风格设计
新中式风格设计
新中式风格设计
长沙总店高级设计师
姓名:陈**
首席设计师
从业年限:6
人气指数:60
更多案例
预约设计
您的称呼
您的电话
预约设计
相关标签
更多>>
简约风格
现代风格
中式风格
混搭风格
田园风格
地中海风格
欧式风格
美式风格
古典风格
日式风格
韩式风格
东南亚风格
复古风格
最新装修资讯
相关案例推荐
更多>>
24h免费热线
400-857-0857
在线客服
全品类整装
一键报价